









architectures d'intérieur
espace de vie contemporain pour un célibataire allemand
bruxelles
2006
client : privé
surface : 156 m2
bruxelles
2006
client : privé
surface : 156 m2
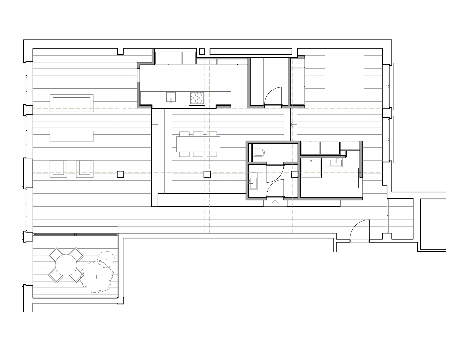
Deux micro-architectures modernistes sont disposées avec soin dans l’espace de cet
ancien atelier, dont la
structure existante est en béton brut,
pour le diviser tout en préservant sa continuité. Elles s’inspirent des maisons prototypes de Mies van der Rohe construites dans les halles de l’exposition du Bâtiment à Berlin en 1930, et des sculptures de Georges Vantongerloo de la même époque. Leurs façades sont réalisées en enduit extérieur teinté dans deux nuances de gris. Cette texture extérieure se retourne et recouvre également tous les murs et plafonds à l’intérieur des deux blocs.
Un dallage de basalte sombre s’élève en partie centrale et crée un socle tramé pour recevoir ces deux “architectures d’intérieur”, abritant les locaux de service. Ce piédestal articule les différents espaces tout en maintenant la continuité traversante du loft. Il permet également le passage invisible des conduits techniques vers la seule gaine située contre le mitoyen.
Une longue bibliothèque basse, de teinte grenade, accueille les visiteurs, les informe de la passion de l’habitant des lieux pour l’architecture, et les guide vers la façade arrière et sa vue dégagée vers l’ouest et la basilique.
Les meubles de la cuisine, de même tonalité, lui répondent tel un écho, perceptible à travers une longue fente pratiquée dans la peau grise du second parallélépipède.
Un dallage de basalte sombre s’élève en partie centrale et crée un socle tramé pour recevoir ces deux “architectures d’intérieur”, abritant les locaux de service. Ce piédestal articule les différents espaces tout en maintenant la continuité traversante du loft. Il permet également le passage invisible des conduits techniques vers la seule gaine située contre le mitoyen.
Une longue bibliothèque basse, de teinte grenade, accueille les visiteurs, les informe de la passion de l’habitant des lieux pour l’architecture, et les guide vers la façade arrière et sa vue dégagée vers l’ouest et la basilique.
Les meubles de la cuisine, de même tonalité, lui répondent tel un écho, perceptible à travers une longue fente pratiquée dans la peau grise du second parallélépipède.

